Complete installatieset voor wandcloset
- closet met innovatieveAQUABLADE®spoeltechnologie
- SoftClose mechanisme voor langzame sluiting van de closetzitting
- deze installatieset is ook verkrijgbaar in andere uitvoeringsvarianten van de bedieningsplaat
Bevat
- Ideal Standard ProSys 120M voorwandinstallatie voor wandcloset
- set voor geluidsdemping
- Ideal Standard Strada II, AQUABLADEwandcloset
- closetzitting met SoftClose mechanisme
- Ideal Standard Oleas M1,SmartFlushdual flush bedieningsplaat, mat chroom
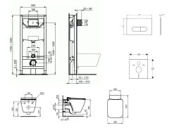
ProSys 120M voorwandinstallatiemodule voor wandcloset
Installatie
- installatie voor stevige wand of lichte wand van gipsplaat
- frontbediening
- minimale installatiediepte 150 mm
- zelfdragend frame van staalprofielen met in hoogte verstelbare poten (0-200 mm), met anticorrosie- en krasbescherming
- afvoerbocht, in diepte verstelbaar
- geteste draagkracht frame voor belasting 400 kg
- eenvoudige en snelle installatie dankzij het EasyFixsysteem
- voor wandclosets met montageafmeting 180 of 230 mm
- inbouwreservoir van polypropyleen (PP), dat zeer goed bestand is tegen thermische belasting
- geleverd met anticondensbekleding
Specificaties
- dual flush spoeling vooringesteld op 6/3 l, optioneel instelbaar op 4/2, 6/3 of 7/3 liter
- SmartValve besparende technologie (waarmee u tot 9 l kunt besparen), CE-markering EN 14055 CL1
- stille klep conform normcategorie NF akoestische klasse 1
- onderhoud van het reservoir zonder de noodzaak om speciaalspeciaal gereedschap te gebruiken
- kan gebruikt worden met mechanische, pneumatische of elektronische bedieningsplaat
- kan gecombineerd worden met SmartFlush hygiënisch spoelsysteem
Inclusief
- bevestigingsset voor wandcloset
- framebevestiging
- toevoer- en afvoeraansluiting voor closetpot
- afvoerbocht en adapter Ø 90/110
- rubberen afdichting Ø 45 mm
- beschermende doos
- stopkraan G 1/2
Oleas M1 mechanische bedieningsplaat voor dual flush spoeling
- geschikt voor de voorwandreservoirs ProSys 120M, ProSys 80M, ProSys 150M
- waterbesparing dankzij dual flush spoeling
- bedieningskracht< 20 N
- afmetingen: 154 x 234 mm
- incl. montageframe en montageaccessoires
- eenvoudige, gereedschapsloze montage
- compatibel met SmartFlush– systeem in het spoelreservoir dat vloeibaar ontsmettingsmiddel toevoegt aan elke spoeling
- de hals van de geïntegreerde houder voor ontsmettingsmiddel wordt toegankelijk na opzij schuiven van de bedieningsplaat
- de mechanische inrichting werkt zonder stroom
- doseringssysteem kan achteraf worden geïnstalleerd, zonder gereedschap
SmartFlush doseringssysteem niet meegeleverd.
Geluiddempende set
- voor wandcloset of wandbidet
- voor montage van sanitair met bevestigingsafstand van 18 cm of 23 cm
- verhindert geluidsoverdracht bij closet en bidet
- materiaal: polyethyleenschuim
- bevat: 1 geluidsisolerende inzet, 2 sluitringen
Wandcloset met ultraplatte, afneembare closetzitting
- afmetingen: 365 x 400 x 545 mm
- materiaal: gesinterde keramiek (VC)
- kleur: wit
- verborgen bevestiging
- AQUABLADEspoeltechnologie
- SoftClose langzame sluiting
Dit product kan bij u zonder originele verpakking geleverd worden. De reden is bescherming van product tegen eventuele schade tijdens transport.































Reviews
There are no reviews yet.